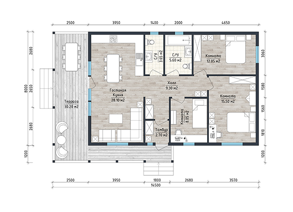
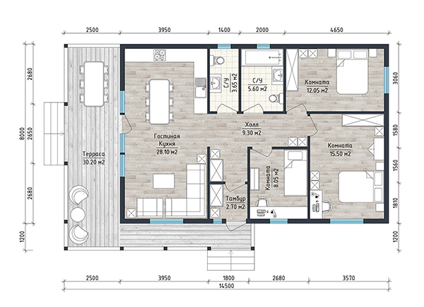
ПОДРОБНАЯ СПЕЦИФИКАЦИЯ
Фундамент: | Винтовые сваи 108 мм, 2500 мм |
Обвязка: | Брусовая 150х150 мм (не строганый брус естественной влажности); |
Гидроизоляция: | рубероид между оголовком сваи и бвязкой |
Лаги: | дочка 45 х 145 мм (строганая камерной сушки), шаг не более 600 мм; |
Череповой брусок: | 40 х 40 мм; |
Черновой пол: | обрезная доска 20 х 100/150мм, уложенная всплошную; |
Гидроизоляция: | Изоспан или аналоги; |
Пароизоляция: | Изоспан или аналоги; |
Чистовой пол: | шпунтованная доска камерной сушки 36 мм, или фанера по обрешетке; |
Утепление пола: | 150 мм Rockwool базальтовый в плитах с перехлестом стыков; |
Стены: | каркас доска 45х145мм (строганая камерной сушки) шаг 600мм |
Утепление стен: | 150 мм Rockwool базальтовый в плитах с перехлестом стыков |
Отделка стен снаружи: | имитация бруса 16 мм по ветрозащитной мембране Изоспан А и контр обрешетке |
Отделка стен внутри: | вагонка по пароизоляции Изоспан В |
Потолок: | высота в чистоте - 2500 мм; потолочное перекрытие: доска 45 х 145 мм (строганая камерной сушки), шаг не более 600 мм. |
Крыша: | стропильная система: 45 х 145 мм (строганая камерной сушки), шаг не более 600 мм; |
Обрешетка с контр обрешеткой: | обрезная доска 25 мм ( естественной влажности), допускается шаг не более 350 мм; |
Кровля: | металлочерепица. |
Поднебесники: | обшиты имитацией бруса. |
Лестница при входе: | тетива: доска 50 х 150мм; ступени: доска 50 х 150 мм; |
Окна: | ПВХ, цвет белый, поворотно-откидные, подоконники белые |
Отливы подоконные: | металлические белые. |
Дверь входная: | металлическая, утепленная, с глазком, Россия; |
Двери межкомнатные: | филенчатые 0,8м на петлях. |
Погонажные изделия: | -плинтус камерной сушки 40 мм.
-наличник оконный, дверной: камерной сушки;
-нащельник: плинтус |










